Sold STC
Guide Price £375,000

The Sycamores, Bluntisham, Huntingdon, Cambridgeshire, PE28 3XW (ref: 594879)

Shortlist

Key Features

  • EXTENDED FOUR BEDROOM FAMILY HOME
  • SET BACK FROM A NO-THROUGH ROAD WRAPPING AROUND GREEN OPEN SPACE
  • RE-FITTED KITCHEN DINER
  • RENOVATED CONSERVATORY
  • VERSATILE STUDY / UTILITY AREA
  • LARGE LIVING ROOM WITH BAY WINDOW
  • MASTER BEDROOM WITH EN-SUITE SHOWER ROOM
  • RE-FITTED FAMILY BATHROOM
  • PARKING FOR SEVERAL CARS
  • GARDEN WITH A SOUTHERLY ASPECT
This spacious, extended four bedroom home is ideal for a family, located on a street with no-through traffic, close to green open space and within walking distance of a local primary school.

Offers Considered between £375,000 to £400,000

It has been well cared for and presents well, with a large lounge with bay window, re-fitted kitchen diner by the current owners, utility room / study area and renovated conservatory.

The master bedroom on the first floor benefits from an en-suite shower room and has recently been refurbished, plus there are three extra bedrooms, a recently refurbished family bathroom and an enclosed rear garden with a sunny south-facing aspect, perfect for a busy family life.

An attractive frontage with the driveway providing off road parking for multiple vehicles.

Contact our office today to book your viewing appointment.

Rooms

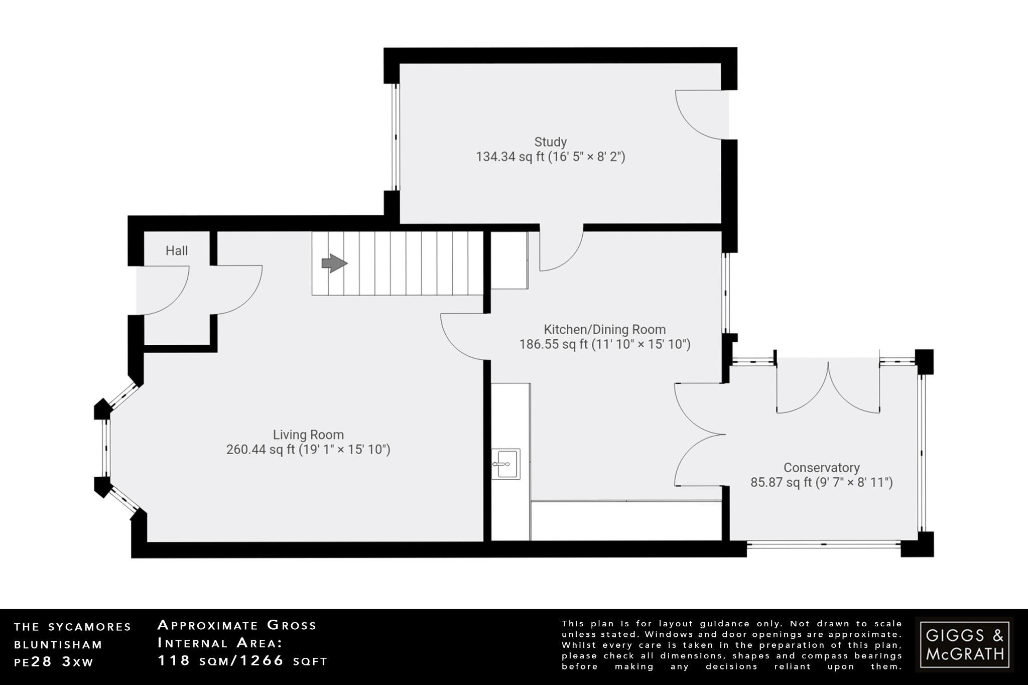
Entrance via double glazed glass panel front door into porch.
Door opening to:

Living Room (19'0 x 15'10)
Fantastic size living space with double glazed walk-in bay window to front with fitted blinds, stairs to first floor, under stairs recess, radiator.

Kitchen Dining Area (15'10 x 11'10)
Beautifully re-fitted range of wall, base and drawer units with 1.5 bowl sink and drainer with mixer tap, integrated eye level oven and microwave with induction hob and fitted extractor, space and plumbing for dishwasher and fridge/freezer, tiled walls and flooring, space for table and chairs, designer radiator, double glazed window to rear and double glazed door opening to the conservatory, door to utility room.

Conservatory (9'7 x 8'11)
Constructed from brick and double glazing with French doors opening to the rear garden and glass lantern roof, tiled flooring, radiator.

Utility Room / Office Space (16'5 x 8'2)
Fitted wall and base units with sink and drainer, space and plumbing for washing machine, tumble dryer and fridge/freezer, tiled splashback, radiator, double glazed window to front and door opening to the rear garden.

Landing
Airing cupboard, access to loft space.

Bedroom One (13' x 9'10)
Double glazed window to rear, radiator, door to:

Ensuite Shower Room
Fitted three piece suite comprising walk-in shower with glass screen, wash hand basin, low level WC, heated towel rail, wall cabinet, tiled walls and flooring, double glazed window to side.

Bedroom Two (16'9 x 8'2)
Double glazed windows to front and rear, radiator.

Bedroom Three (11'10 x 9'10)
Double glazed window to front, radiator.

Bedroom Four (8'9 x 7'11)
Double glazed window to front, radiator.

Bathroom
Beautifully re-fitted three piece suite comprising panel bath with glass shower screen, vanity wash hand basin with storage drawers, low level WC, feature walls mirror with lighting, heated towel rail, fully tiled walls and flooring, extractor, double glazed window to rear.

Outside
Good size south facing rear garden mainly laid to lawn with paved patio area, timber shed, gated side access to the front with block paved driveway providing off road parking for several vehicles, established shrubs and flowers with mature tree at the entrance.

Agents Note
Council Tax Band - D

Stamp duty due

Based on a sale price of £375,000 the total amount of stamp duty payable will be:

*

Last updated: The calculator has been updated to reflect changes in stamp duty following the Autumn Budget on 30th October 2024 for April 1st 2025 onwards.

* This value is based on the standard rate and not applicable to first-time buyers or buy-to-let / second home buyers.

Property Images

4 bed detached house for sale in The Sycamores, Huntingdon 0

4 bed detached house for sale in The Sycamores, Huntingdon 1

4 bed detached house for sale in The Sycamores, Huntingdon 2

4 bed detached house for sale in The Sycamores, Huntingdon 3

4 bed detached house for sale in The Sycamores, Huntingdon 4

4 bed detached house for sale in The Sycamores, Huntingdon 5

4 bed detached house for sale in The Sycamores, Huntingdon 6

4 bed detached house for sale in The Sycamores, Huntingdon 7

4 bed detached house for sale in The Sycamores, Huntingdon 8

4 bed detached house for sale in The Sycamores, Huntingdon 9

4 bed detached house for sale in The Sycamores, Huntingdon 10

4 bed detached house for sale in The Sycamores, Huntingdon 11

4 bed detached house for sale in The Sycamores, Huntingdon 12

4 bed detached house for sale in The Sycamores, Huntingdon 13

4 bed detached house for sale in The Sycamores, Huntingdon 14

4 bed detached house for sale in The Sycamores, Huntingdon 15

4 bed detached house for sale in The Sycamores, Huntingdon 16

4 bed detached house for sale in The Sycamores, Huntingdon 17

4 bed detached house for sale in The Sycamores, Huntingdon 18

4 bed detached house for sale in The Sycamores, Huntingdon 19

4 bed detached house for sale in The Sycamores, Huntingdon 20

Further Details

  • Status: Sold STC
  • Tenure: Freehold
  • Tags: Garden, Parking and/or Driveway, Shed / Garden Room
  • Reference: 594879

Location

Similar Priced Properties