4 bedroom
2 bathroom
4 bedroom
2 bathroom
*** A STUNNING, BRAND NEW 3 / 4 BEDROOM DETACHED CHALET STYLE HOME IN THIS SELECT DEVELOPMENT OF 6 LUXURY HOMES, WITH A BEAUTIFUL VAULTED LIVING ROOM, OPENING ONTO THE REAR GARDEN ***
With 1722 SQ FT of versatile living space, with ground floor bedroom option and a ground floor shower room, this makes the perfect option for future proof living.
This EXCLUSIVE DEVELOPMENT is not to be passed by as homes in this village are RARELY AVAILABLE.
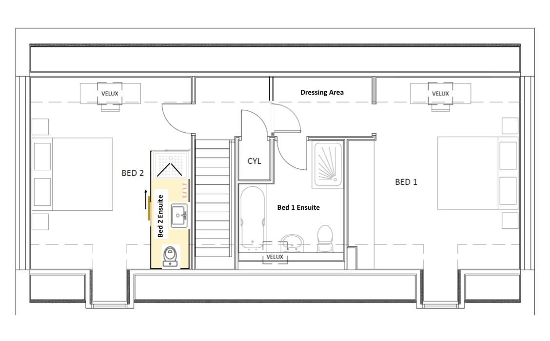
Buyers are invited to discuss the upper floor design layout with Rose Homes as there is the opportunity to create a two ensuite bathrooms along with their choice of Amtico flooring and carpets to finish the property.
CALL THE OFFICE TODAY TO DISCUSS THE NEW FLOORPLAN OPTIONS.
Entrance via double glazed door.
Entrance Hall
Two double glazed windows to front, stairs with oak handrails and newel posts to first floor with glass balustrades, under stairs cupboard, Amtico flooring*.
Shower Room
Modern, contemporary white sanitary ware comprising stylish shower enclosure, vanity unit with chrome taps and fittings, back to wall WC, chrome heated towel rail, quality wall tiles and Amtico flooring*
Kitchen Breakfast Room21'1" x 13'1" (6.43m x 4m)
Individually designed by a specialist supplier to include fitted wall, base and drawer units with two integrated NEFF hide and slide ovens, NEFF induction hob and NEFF angled chimney hood, integrated dishwasher, fridge/freezer, sink with feature tap, Quartz worktops and breakfast bar, LED lighting, chrome switches and sockets, double glazed window to front, opening to the dining area with French doors with multi-point locking opening to the rear garden.
Living / Dining Room23'10" x 17'3" (7.26m x 5.26m)
Two double glazed windows to side and large bi-folding rear doors opening to the rear garden, TV, BT and USB points, radiator.
Bedroom Three / Family Room13'1" x 12'4" (4m x 3.76m)
Double glazed window to front, radiator.
Bedroom Four / Study13'1" x 8'1" (4m x 2.46m)
Double glazed French doors opening to the rear garden, radiator.
Landing
Airing cupboard, radiator.
Bedroom One18'5" x 14'2" (5.61m x 4.32m)
Double glazed windows to front, radiator.
Bedroom Two18'5" x 13'3" (5.61m x 4.04m)
Double glazed windows to front, radiator.
Bathroom
Modern, contemporary white sanitary ware comprising stylish shower enclosure, panel bath and vanity unit with chrome taps and fittings, back to wall WC, chrome heated towel rail, quality wall tiles and Amtico flooring*.
Outside
Generous patio areas with walkway leading around the property, rear garden is laid to lawn with private enclosed fencing.
Private Driveway and Courtyard
Designed around the development featuring a resin bound courtyard area with a blend of charcoal block paving parking areas.
Developer Notes
External Traditionally constructed new builds with brickwork and blockwork. The barn conversions have been painstakingly restored using the original bricks and roof tiles to create attractive features and distinctive roof lines. Windows on the development include double glazed large feature windows incorporating chrome locking fittings to blend the modern build with the original features of the area. Internal doors will be oak faced, contemporary design and will feature black hardware in order to keep to the features of the existing properties surrounding the development. Electrical – includes recessed spotlights, feature lights to main areas, chrome switches and sockets to kitchen area, TV, BT and USB points to numerous rooms, external power sockets and external lighting. Heating – programmable zoned central heating system and traditional radiators with thermostatic valves. Wall tiling to bathroom & ensuite will be sourced from our quality suppliers and each room will be fully tiled within shower and bath enclosures and half tiled to all other walls. Safety & General – hardwood front doors* with chrome fittings, various bi-folding and patio doors with multi-point locking. Alarm spur points and wired smoke detectors with battery back-up. Internal Finishes – individually designed stairs* to feature oak newel posts, oak caps, oak handrail, glass balustrades and black iron spindles. Modern skirting and architrave will be satin finished. Floor Finishes will be a mixture of Amtico flooring in the kitchen, utility, bathrooms and WC in a choice of style and colour with the option of having carpets to all other rooms throughout. Management company charge of £250.00 per annum. * Specification and optional extras are ALL subject to house type and stage of construction. Images used are finishes taken from previous Rose Homes development and/or are previous works undertaken by our suppliers. Rose Homes reserves to right to alter the specification, floor plans and or designs without notice. Specifications are for guidance purposes only and do not form part of any contractual obligation, illustrations are for reference only.








