4 bedroom
2 bathroom
4 bedroom
2 bathroom
*** A VASTLY EXTENDED 4 BEDROOM FAMILY HOME WITH AN OUTSTANDING REAR GARDEN, OFFERING A GROUND FLOOR BEDROOM AND BATHROOM OPTION, WITH 3 FURTHER DOUBLE BEDROOMS AND BATHROOM TO MAXIMISE FAMILY OPTIONS ***
Offers considered between £375,000 - £400,000
This GREAT FAMILY HOME offers so much in terms of space and options.
With extensions to both the FRONT AND REAR providing a wealth of accommodation.
With a beautiful NAVY RE-FITTED KITCHEN BREAKFAST ROOM, large living room, conservatory and 4th bedroom / family room on the ground floor alongside a full bathroom suite.
The 3 bedrooms on the first floor are all great doubles and with family bathroom also.
The STUNNING REAR GARDEN sits on a great mature plot.
There is an oversized single garage with plumbing to the rear and ample drive to the side providing off road parking.
CALL TO VIEW TODAY
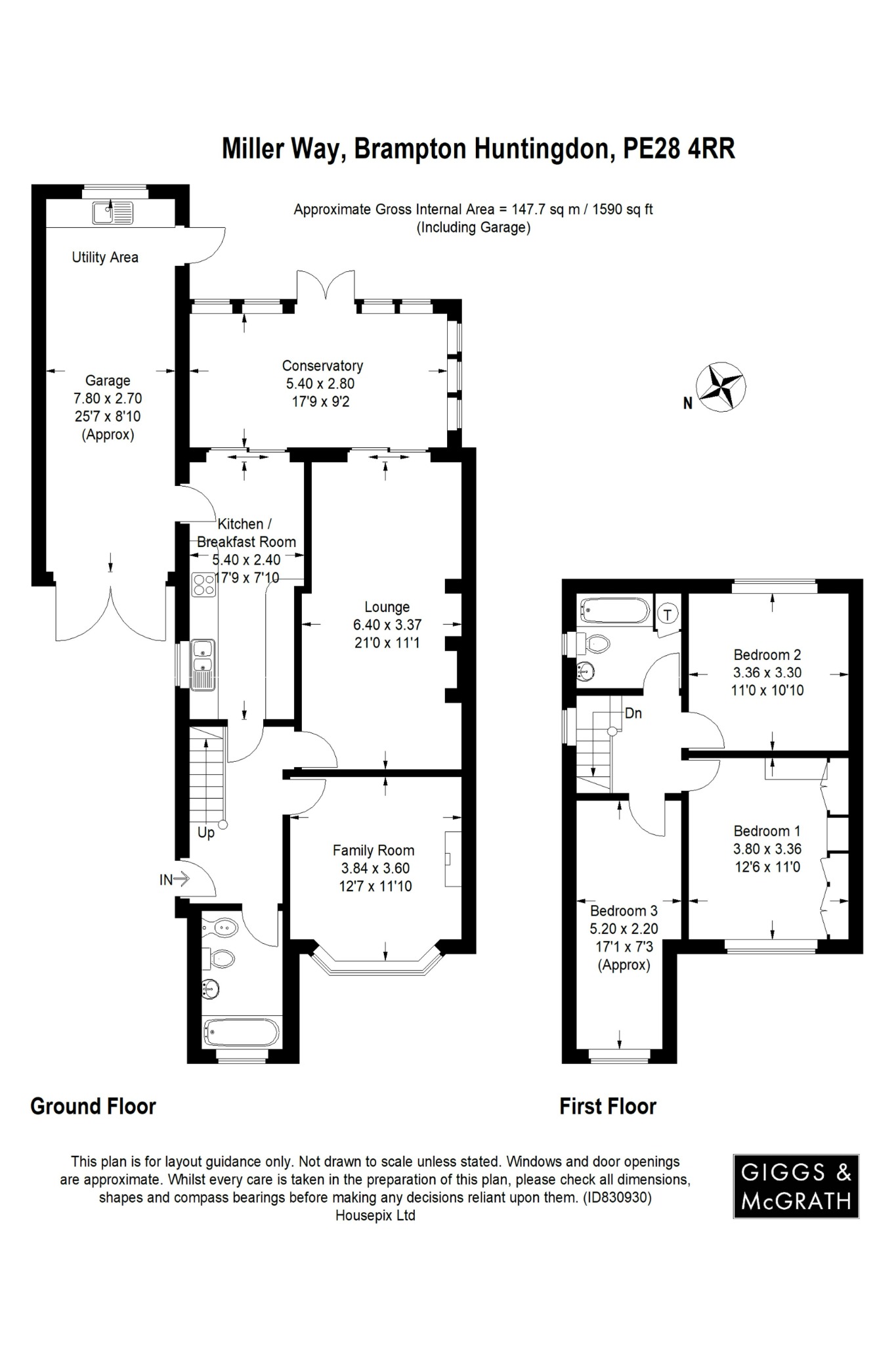
Rooms
Entrance via UPVC double glazed door to side.
Entrance Hall
Stairs to first floor, under stairs cupboard.
Ground Floor Bathroom
Fitted four piece suite comprising inset shower over panel bath, pedestal wash hand basin, low level WC, heated towel rail, UPVC double glazed window to front.
Family Room / Bedroom Four (12'7 x 11'10)
A useful, versatile room with UPVC double glazed window to front, radiator.
Living Room (21'0 x 11'1)
Spacious room split into two sections, radiator, UPVC double glazed patio doors opening to the conservatory.
Conservatory (17'9 x 9'2)
A large conservatory constructed from brick and UPVC double glazing, radiator, French doors opening to the rear garden.
Kitchen Breakfast Room (17'9 x 7'10)
A beautiful fitted range of navy wall, base and drawer units with 1.5 bowl stainless sink and drainer, fitted Neff oven, hob and AEG extractor fan, integrated fridge/freezer and AEG dishwasher, stylish worktops, radiator, door into the garage.
Landing
UPVC double glazed window to side.
Bedroom One (12'6 x 11'0)
UPVC double glazed window to front, fitted wardrobes and dressing table, radiator.
Bedroom Two (11'10 x 10'10)
Good size double room with UPVC double glazed window to rear, radiator.
Bedroom Three (17'1 x 7'3)
A superb size extended room providing another double room with UPVC double glazed window to front, radiator.
Bathroom
Fitted three piece suite comprising electric shower over panel bath, pedestal wash hand basin, low level WC, heated towel rail, UPVC double glazed window to side.
Outside
A superb, spacious rear garden mainly laid to lawn with variety of mature trees, shrubs and flowers, paved patio area, personal door into garage.
Oversized garage with plumbing area to rear with stainless steel sink and drainer, plumbing for washing machine and tumble dryer.
Ample drive to the side of the property providing off road parking leading to the single garage.
Agents Note
Council Tax Band - C














