Sold STC
Guide Price £400,000

Meadow Lane, Earith, Huntingdon, Cambridgeshire, PE28 3QE (ref: 619523)

Shortlist

Key Features

  • SUPERB DEVELOPMENT OPPORTUNITY (STP)
  • POTENTIAL RENOVATION TO EXTEND WITH ADDED POSSIBLE PLOT (STP)
  • SOUGHT AFTER LOCATION WITHIN EARITH VILLAGE
  • FANTASTIC PRIVATE PLOT
  • NO CHAIN
  • SINGLE GARAGE
  • CURRENT 3 BEDROOM DETACHED HOME
  • EARLY INTEREST EXPECTED - ENQUIRE WITHIN
Are you looking for a property with great potential? Look no further! Located in the sought-after area of Meadow Lane, Earith, this 3-bedroom detached house presents an incredible development opportunity (subject to planning) that is sure to capture your imagination.

Nestled within the charming Earith Village, this property offers more than just a home; it offers the chance to create your dream residence, uniquely tailored to your preferences. With scope for extension and the possibility of an added plot (subject to planning), this is a rare find that shouldn't be missed.

Situated on a fantastic private plot, the property boasts ample space for personalisation and expansion. Whether you envision an expanded living area, a larger kitchen, or additional bedrooms, the opportunity to transform this house into your ideal home is within reach. Unlock the potential and make your mark on this stunning residence.

The property comes with a single garage, offering secure parking and additional storage space. No more hunting for a parking spot or worrying about vehicle security. Convenience and peace of mind are integral features of this home.

Inside, the current layout features three well-proportioned bedrooms, providing ample space for a growing family or for those seeking a dedicated home office. The possibilities are endless! Picture yourself waking up to the serene surroundings and enjoying a cup of coffee on the patio, enhancing your at-home relaxation experience.

The highly sought-after location within Earith Village places you within a vibrant community with easy access to local amenities and excellent schools. Whether you have children or simply enjoy being part of a friendly neighbourhood, this property offers the perfect setting.

With no chain, you can move forward swiftly, without any delays or complications. Take advantage of this advantageous situation, and start making plans to create your ideal home.

Early interest is expected for this exceptional property, so don't hesitate!

Rooms

Entrance via solid front door.

Entrance Hall
Stairs leading to the first floor, radiator.

Living Room (18'10 x 11'8)
Window to front and French doors opening to the rear garden, feature fireplace, two radiators.

Dining Room (12'6 x 10')
Window to rear, storage cupboard, radiator.

Kitchen (9'1 x 8'5)
Fitted range of wall, base and drawer units with inset sink and drainer, space for oven/hob with fitted extractor, space for fridge/freezer, larder cupboard, radiator, window to front, door opening to inner hallway.

Side Passage / Inner Hallway
Doors opening to the front and rear, large storage cupboard with space and plumbing for washing machine and tumble dryer, internal door opening to the garage.

Cloakroom
Fitted two piece suite comprising low level WC, pedestal wash hand basin, radiator, window to side.

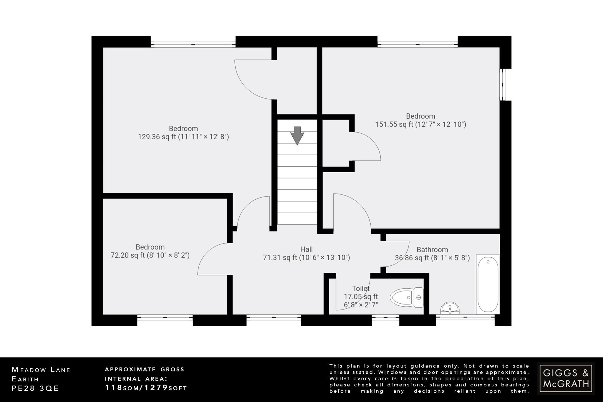
Landing
Double glazed window to rear, radiator.

Bedroom One (12'10 x 12'7)
Double glazed windows to front and side, fitted wardrobe, radiator.

Bedroom Two (12'8 x 11'11)
Double glazed window to front, radiator.

Bedroom Three (8'10 x 8'2)
Double glazed window to rear, radiator.

Bathroom
Fitted two piece suite comprising panel bath with shower attachment over, pedestal wash hand basin, radiator.

Separate Cloakroom
Fitted low level WC, double glazed window to rear.

Outside
The property sits on a substantial private plot with the potential on an extension subject to planning permission. The rear garden is mainly laid to lawn with variety of established trees and shrubs, glass greenhouse, gated access to the front with the driveway providing ample off road parking leading to the single garage.

Agents Note
Council Tax Band - D

Stamp duty due

Based on a sale price of £400,000 the total amount of stamp duty payable will be:

*

Last updated: The calculator has been updated to reflect changes in stamp duty following the Autumn Budget on 30th October 2024 for April 1st 2025 onwards.

* This value is based on the standard rate and not applicable to first-time buyers or buy-to-let / second home buyers.

Property Images

3 bed detached house for sale in Meadow Lane, Huntingdon 0

3 bed detached house for sale in Meadow Lane, Huntingdon 1

3 bed detached house for sale in Meadow Lane, Huntingdon 2

3 bed detached house for sale in Meadow Lane, Huntingdon 3

3 bed detached house for sale in Meadow Lane, Huntingdon 4

3 bed detached house for sale in Meadow Lane, Huntingdon 5

3 bed detached house for sale in Meadow Lane, Huntingdon 6

3 bed detached house for sale in Meadow Lane, Huntingdon 7

3 bed detached house for sale in Meadow Lane, Huntingdon 8

3 bed detached house for sale in Meadow Lane, Huntingdon 9

3 bed detached house for sale in Meadow Lane, Huntingdon 10

3 bed detached house for sale in Meadow Lane, Huntingdon 11

3 bed detached house for sale in Meadow Lane, Huntingdon 12

3 bed detached house for sale in Meadow Lane, Huntingdon 13

3 bed detached house for sale in Meadow Lane, Huntingdon 14

3 bed detached house for sale in Meadow Lane, Huntingdon 15

Further Details

  • Status: Sold STC
  • Tenure: Freehold
  • Tags: Development Opportunity, Garage, Garden, No Onward Chain, Parking and/or Driveway
  • Reference: 619523

Location

Similar Priced Properties