Guide Price £750,000

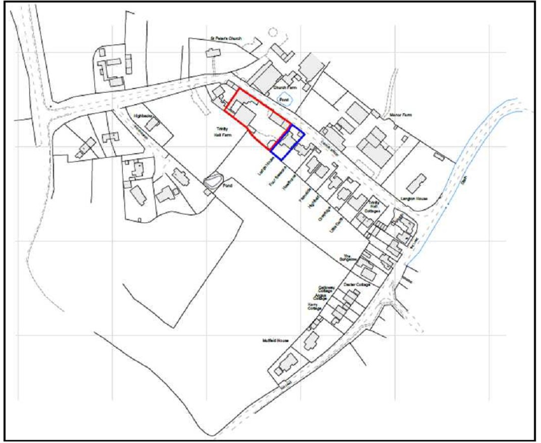
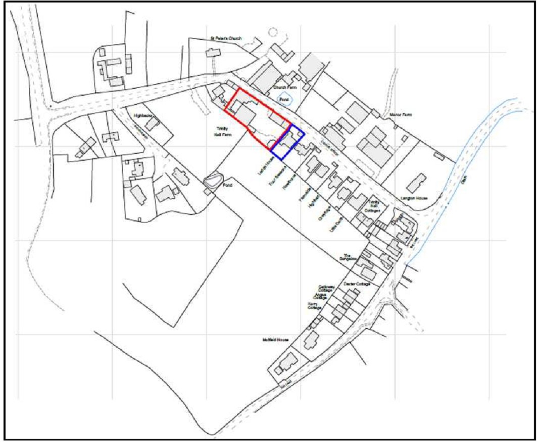
Land at Trinity Hall Farm, Church Street, Old Hurst, Huntingdon, Cambridgeshire, PE28 3AF (ref: 693760)

Shortlist

Key Features

  • 0.54 ACRES OF LAND WITH FULL PLANNING PERMISSION FOR 2 DWELLINGS
  • FOR SALE AS PRIVATE TREATY AS A WHOLE
  • PERMISSION IN PRINCIPLE FOR 2 FURTHER DWELLINGS
  • ATTRACTIVE CAMBRIDGESHIRE VILLAGE
  • EXCELLENT COMMUNICATION LINKS
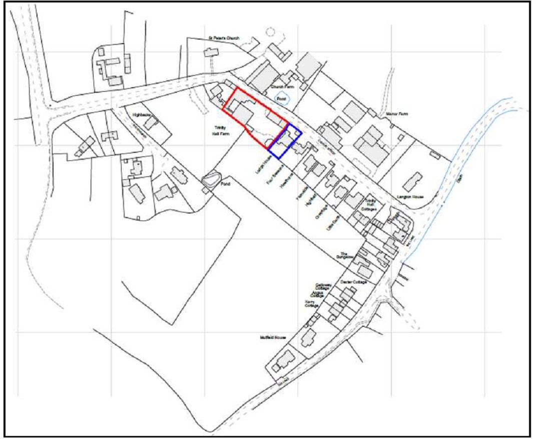
An outstanding development opportunity awaits along Church Street, Old Hurst, presenting a substantial 0.54-acre plot for sale as a private treaty. This attractive parcel of land is situated within a highly sought-after Cambridgeshire village, renowned for its picturesque surroundings and excellent communication links, making it an ideal location for new residential development.
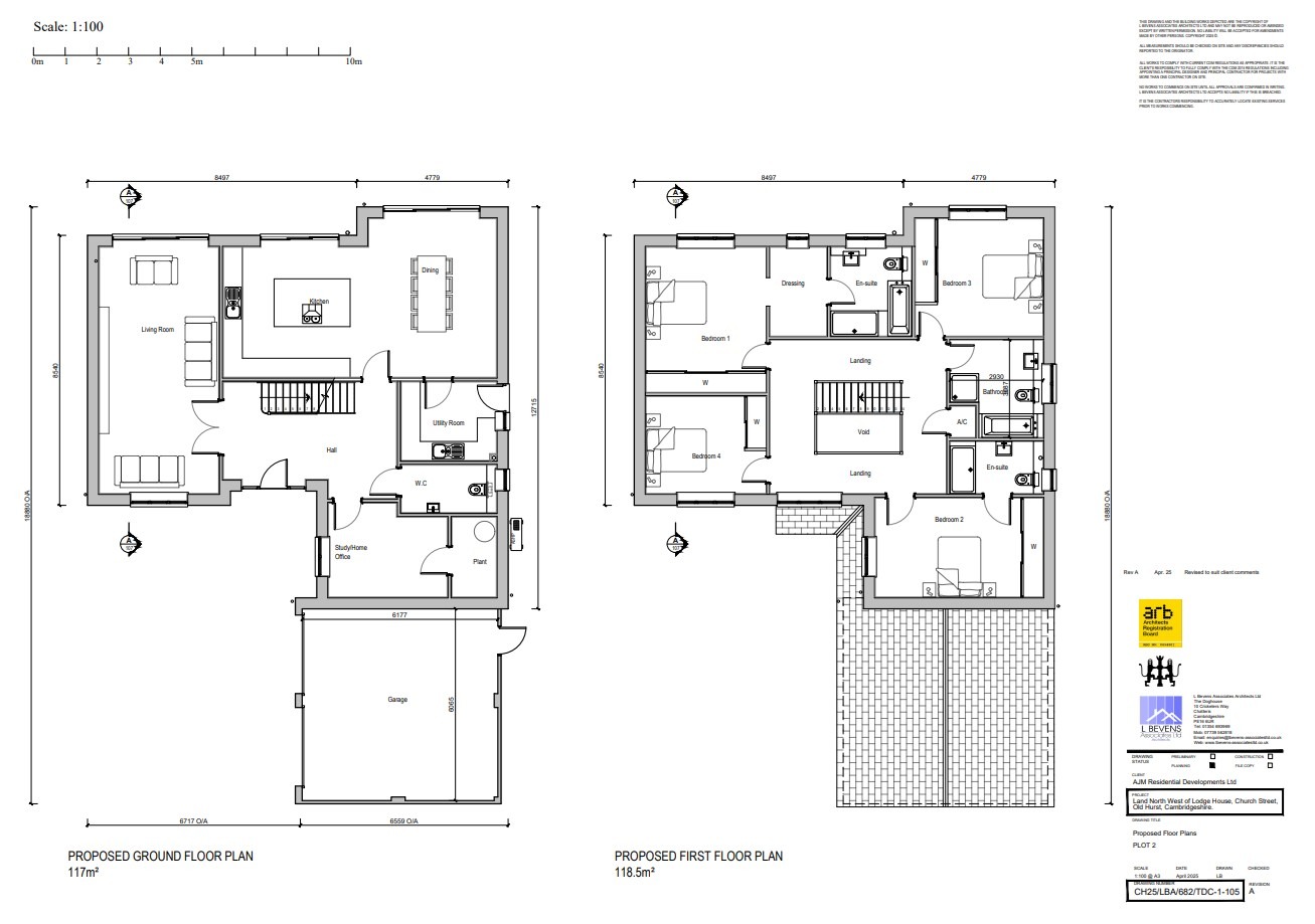
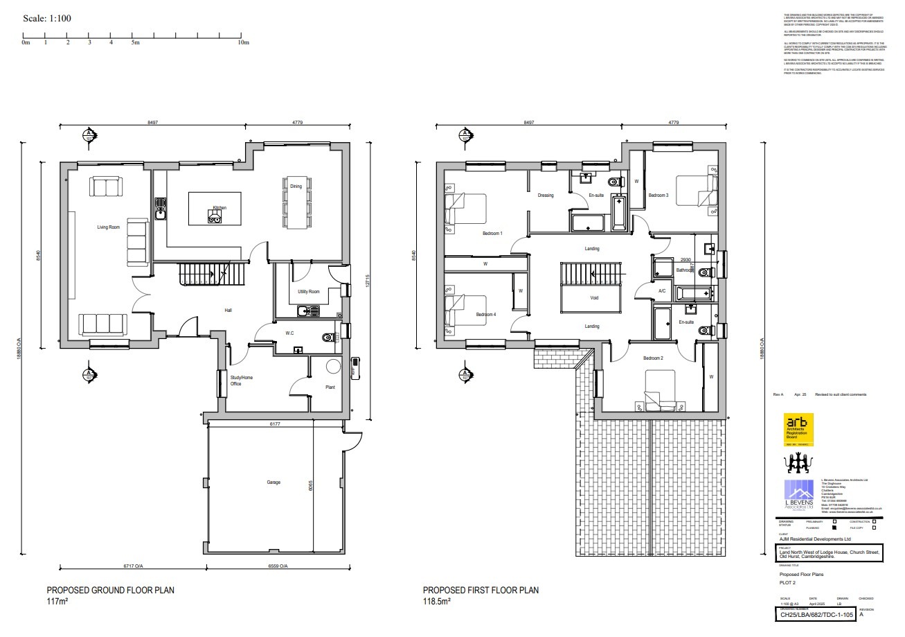
The site benefits from full planning permission already secured for the construction of two impressive new build dwellings. Each proposed property is designed to offer generous living spaces, comprising four bedrooms, three bathrooms, and two reception rooms, catering to modern family living and discerning buyers. The existing planning ensures a streamlined start to development, significantly reducing initial project timelines and uncertainties.
Adding to its immense appeal, the land also holds permission in principle for two further dwellings. This offers incredible flexibility and potential for a phased development, allowing a developer to maximise the site's value and create a total of four high-quality homes. This layered planning consent provides a clear pathway for a comprehensive residential scheme, appealing to a broad spectrum of potential purchasers.
The guide price for this exceptional development site is £750,000, reflecting the significant potential and value inherent in the approved and prospective planning permissions. The sale as a whole ensures a cohesive development strategy can be implemented across the entire plot.
Located in a charming Cambridgeshire village, residents will benefit from a tranquil lifestyle whilst remaining exceptionally well-connected. The area boasts convenient access to major road networks, facilitating easy commutes to larger towns and cities. Local amenities, including schools, shops, and recreational facilities, are within easy reach, enhancing the desirability of any new homes built on this site.
Interested parties are encouraged to contact us promptly to discuss this unique offering and review the detailed planning documentation.

Agents Note
The what3words location of the main farm drive is crossings.passes.shares

Planning
A Permission in Principle (ref: 23/01880/PIP) was granted at appeal for residential development comprising a minimum of 1 and a maximum of 4 dwellings on the site (ref: APP/H0520/W/24/3338509). Subsequently, a full planning application was submitted to Huntingdonshire District Council for the erection of two x 2,535 sq ft detached 4-bedroom dwellings with attached garages. This application was granted (ref: 25/01099/FUL) on 15th October 2025. Both dwellings will be accessed off Church Street and have sufficient amenity space and parking.

Copies of the planning permissions can be obtained from the selling agents together with further information regarding the planning submissions.

Overage
The site will be restricted to four dwellings.

Site Inspection
Please contact our office to arrange a site inspection. No unauthorised visitors will be allowed on site.

Tenure and Possession
The freehold of the property is offered for sale with vacant possession upon completion.

Boundaries
The purchaser will be deemed to have inspected the land and be satisfied as to the ownership of any boundaries, trees, hedge or ditch.

Local Planning Authority
Huntingdonshire District Council, St Mary's Street, Huntingdon PE29 3TN.

Services
The property is currently connected to mains electricity, mains drainage and water, but prospective purchasers should make their own enquiries of the relevant service providers regarding the connection of services for development purposes.
Community Infrastructure Levy
Huntingdonshire District Council is a charging authority, and prospective purchasers are to have made their own enquiries relating to the potential costs associated with CIL.

Biodiversity Net Gain
Prospective purchasers are advised to have reviewed the Samsara ecology report dated August 2025 in relation to planning application ref: 25/01099/FUL. To achieve the required 10% net gain, habitat units will be required from an offsite provider.

Method of Sale
We are inviting offers in the region of £750,000 for the whole. Exchange of contracts is to be no later than six weeks after instruction of solicitors, with completion four weeks later. The sale will not be subject to VAT.

Anti Money Laundering Checks
To comply with the Money Laundering Regulations 2019, we are required to verify the identity of all prospective buyers before proceeding. We use an independent specialist company, Lifetime Legal, to carry out these checks on our behalf. They will contact you directly at a convenient time to complete the process. This will involve confirming the full name, date of birth and current address of all buyers, along with appropriate identification. The cost for this service is £65 including VAT, which covers the whole transaction (not per person) and is payable directly to Lifetime Legal. Please note that we are unable to advertise a property or issue a memorandum of sale until the identity checks have been successfully completed.

If you have any questions at all, please don’t hesitate to get in touch — we are always happy to help.

Stamp duty due

Based on a sale price of £750,000 the total amount of stamp duty payable will be:

*

Last updated: The calculator has been updated to reflect changes in stamp duty following the Autumn Budget on 30th October 2024 for April 1st 2025 onwards.

* This value is based on the standard rate and not applicable to first-time buyers or buy-to-let / second home buyers.

Property Images

4 bed land for sale in Church Street, Huntingdon 0

4 bed land for sale in Church Street, Huntingdon 1

4 bed land for sale in Church Street, Huntingdon 2

4 bed land for sale in Church Street, Huntingdon 3

4 bed land for sale in Church Street, Huntingdon 4

4 bed land for sale in Church Street, Huntingdon 5

4 bed land for sale in Church Street, Huntingdon 6

4 bed land for sale in Church Street, Huntingdon 7

4 bed land for sale in Church Street, Huntingdon 8

4 bed land for sale in Church Street, Huntingdon 9

4 bed land for sale in Church Street, Huntingdon 10

4 bed land for sale in Church Street, Huntingdon 11

4 bed land for sale in Church Street, Huntingdon 12

4 bed land for sale in Church Street, Huntingdon 13

Further Details

  • Status: Available
  • Tenure: Freehold
  • Tags: Development Opportunity, Parking and/or Driveway
  • Reference: 693760

Location

Similar Priced Properties