Land Adjacent to Gloucester Barn, Fen Road, Pidley, Huntingdon, Cambridgeshire, PE28 3DD
£150,000
£150,000
Land Adjacent to Gloucester Barn, Fen Road, Pidley, Huntingdon, Cambridgeshire, PE28 3DD (ref: 712346)
ShortlistKey Features
- PRE-PLANNING PERMISSION WITHOUT OBJECTION
- PROPOSED 3 BED DETACHED BUNGALOW
- PRESTIGIOUS VILLAGE LOCATION
- DOUBLE GARAGE
- CLOSE PROXIMITY TO THE GOLF CLUB COMPLEX
- PLANNING REF 25/00259/OUT
- EN-SUITE FACILITIES TO BEDS 1 AND 2
- STUDY
- KITCHEN BREAKFAST / DINING ROOM
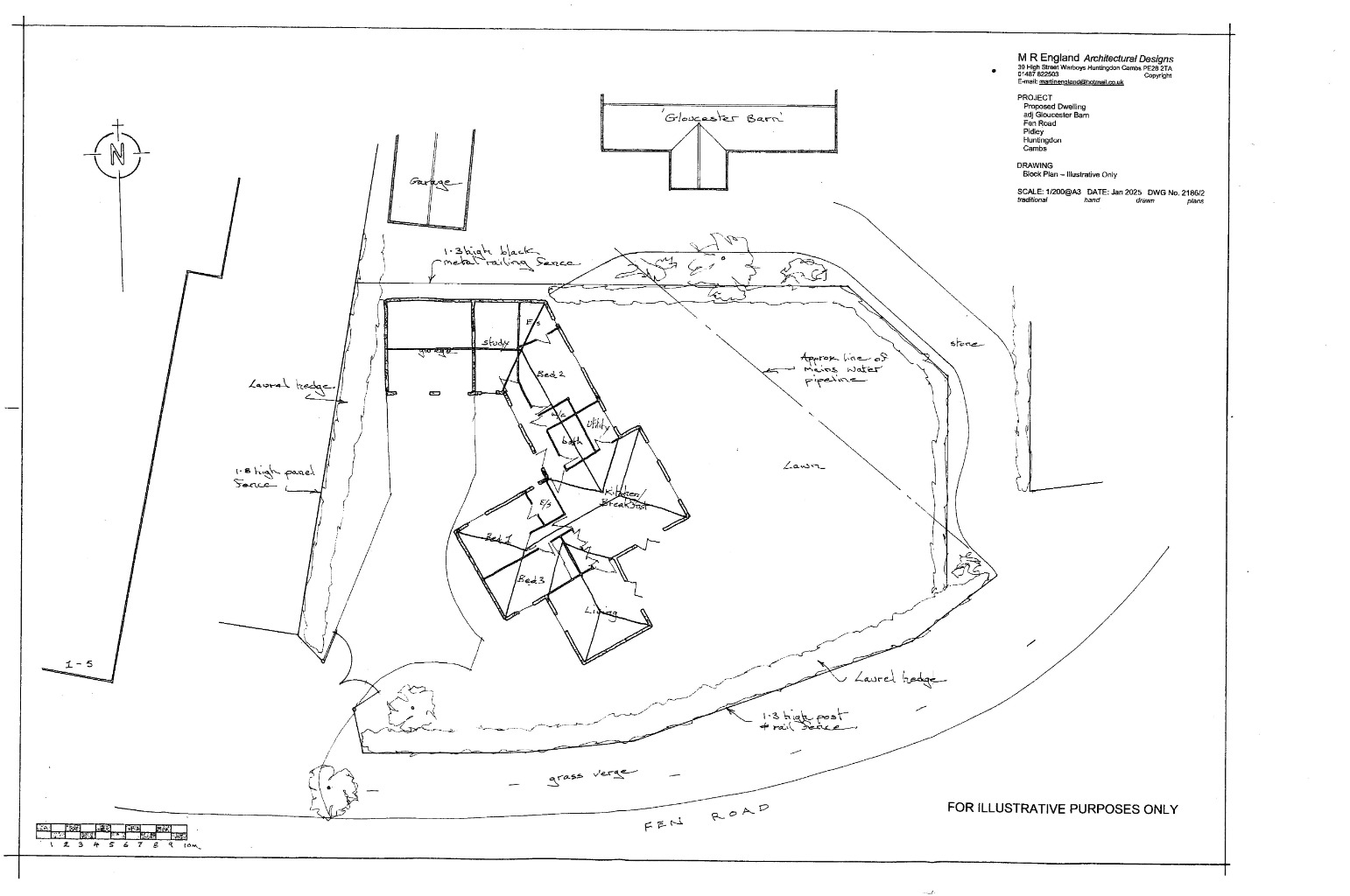
An outstanding and rare opportunity has arisen to purchase a prime plot of land on Fen Road, Pidley, benefiting from pre-planning permission without objection for a proposed three-bedroom detached bungalow. This presents an ideal prospect for developers or individuals seeking to create their dream home in a prestigious and highly desirable village setting.
The approved outline planning permission, referenced as 25/00259/OUT, details a thoughtfully designed three-bedroom detached bungalow. The proposed layout includes two bedrooms with en-suite facilities, offering a touch of luxury and convenience. Additionally, the plans incorporate a dedicated study, providing an ideal space for home working or quiet contemplation. The heart of the home is envisioned as a spacious kitchen breakfast/dining room, perfect for modern family living and entertaining.
Further enhancing the appeal of this development is the inclusion of a double garage within the proposed plans, offering ample parking and storage solutions. The plot's location on Fen Road places it within a well-regarded village, known for its tranquil atmosphere and community spirit.
One of the significant advantages of this property is its close proximity to the local golf club complex, making it an attractive proposition for golf enthusiasts or those who appreciate green spaces and recreational facilities. The surrounding area offers a blend of rural charm and convenient access to local amenities and transport links, ensuring a balanced lifestyle.
This plot represents a unique chance to bypass the initial, often lengthy, planning stages, allowing for a more streamlined development process. The absence of objections during the pre-planning phase provides added confidence and clarity for prospective buyers. With the groundwork for a substantial and well-appointed home already laid out, this land offers a compelling investment for those looking to build a bespoke property tailored to their exact specifications.
Fen Road, Pidley itself is a well-established address, contributing to the overall prestige of the location. The village offers a welcoming environment, and its strategic position provides easy access to Huntingdon's town centre, with its array of shops, services, and mainline railway station offering direct links to London King's Cross. This combination of a desirable location, pre-approved plans, and the potential for a high-quality residence makes this a truly exceptional offering in the current market.
Early viewing and serious enquiries are highly recommended to fully appreciate the scope and potential of this remarkable opportunity.
Property Images










Further Details
- New Listing: Launched in the last 10 days
- Status: Available
- Tenure: Freehold
- Tags: Garage, Parking and/or Driveway
- Reference: 712346













