Sold STC
Guide Price £400,000

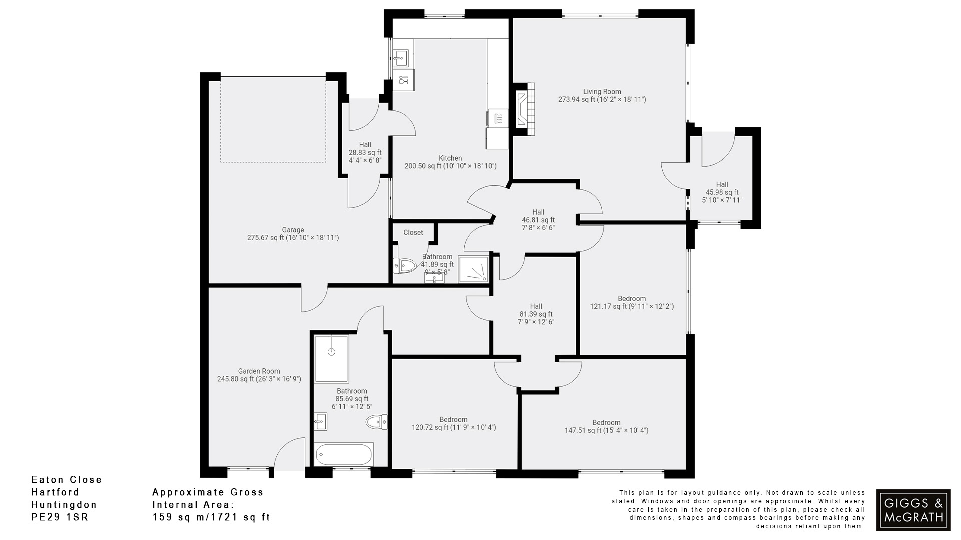
Eaton Close, Hartford, Huntingdon, Cambridgeshire, PE29 1SR (ref: 590462)

Shortlist

Key Features

  • SPACIOUS DETACHED BUNGALOW OFFERING OVER 1,700 SQ. FT OF ACCOMMODATION
  • GENEROUS SOUTH FACING PLOT IN CUL-DE-SAC SETTING
  • THREE BEDROOMS AND THREE RECEPTION SPACES
  • FAMILY BATHROOM WITH BATH AND SHOWER AND SEPARATE SHOWER ROOM
  • OVERSIZED GARAGE AND AMPLE OFF ROAD PARKING
  • NO CHAIN
  • SOUGHT AFTER LOCATION IN SETTING WITH OTHER BUNGALOWS
Deceptively large bungalow situated in a cul-de-sac position in Hartford, Huntingdon! This spacious three double bedroom detached bungalow offers over 1,700 square feet of versatile accommodation, making it a truly unique find in a highly sought-after location.

Available with vacant possession and no forward chain, the property features generous gardens to the front and back, providing ample outdoor space for relaxation, gardening, or family activities. Off-road parking for multiple vehicles ensures convenience and ease for you and your guests.

Inside, the expansive layout includes a large living area, three comfortable double bedrooms, a bathroom, and a separate shower room, catering to all your needs. While the bungalow would benefit from some internal modernisation, it offers an incredible opportunity for you to put your own stamp on it, transforming it into the home of your dreams.

Whether you envision modern open-plan living spaces, a gourmet kitchen, or a luxurious master suite, this bungalow provides the ideal canvas for your creative vision. The scope for renovation and personalization is fantastic, making it perfect for those looking to create a truly bespoke living environment.

Don’t miss out on this exceptional opportunity to secure a spacious, well-located bungalow with immense potential.

Embrace the chance to design and modernise this fantastic property to suit your lifestyle and taste.

Rooms

Entrance via glazed panel front door.

Entrance Hall
Door opening to the garage and door opening to:

Kitchen (18'10 x 10'10)
Good size kitchen with fitted range of wall, base and drawer units with 1.5 bowl stainless steel sink and drainer, integrated double eye level oven, gas hob with fitted extractor, space and plumbing for dishwasher and fridge/freezer, space for table and chairs, radiator, access to loft space, double glazed windows to front and side.

Inner Hallway
Radiator, doors opening to:

Living Room (18'11 x 16'2)
Double glazed windows to front and side, feature fireplace, door opening to the side porch with door opening to the front, radiator.

Garden Room (26'3 x 16'9)
Double glazed window and door opening to the rear garden, door opening to the garage, radiator.

Bedroom One (15'4 x 10'4)
Double glazed window to rear, radiator.

Bedroom Two (12'2 x 9'11)
Double glazed window to side, radiator.

Shower Room
Fitted three piece suite comprising walk-in shower, pedestal wash hand basin, low level WC, airing cupboard, tiled walls and flooring, radiator.

Bedroom Three (11'9 x 10'4)
Double glazed window to rear, radiator.

Bathroom
Fitted four piece suite comprising panel bath, walk-in shower, pedestal wash hand basin, low level WC, tiled walls and flooring, radiator, double glazed window to rear.

Outside
Beautifully well maintained rear garden, mainly laid to lawn with paved entertaining patio area, several seating areas, variety of mature and established trees, shrubs and flowers, garden pond, secret garden to the rear with glass greenhouse and vegetable patch, gated access to the front.

Good frontage with extensive block paved driveway providing off road parking for several vehicles, leading to the single garage, gravel area to the front with variety of shrubs and flowers.

Agents Note
Council Tax Band - E
The current vendors have advised the boiler will need replacing.

Stamp duty due

Based on a sale price of £400,000 the total amount of stamp duty payable will be:

*

Last updated: The calculator has been updated to reflect changes in stamp duty following the Autumn Budget on 30th October 2024 for April 1st 2025 onwards.

* This value is based on the standard rate and not applicable to first-time buyers or buy-to-let / second home buyers.

Property Images

3 bed bungalow for sale in Eaton Close, Huntingdon 0

3 bed bungalow for sale in Eaton Close, Huntingdon 1

3 bed bungalow for sale in Eaton Close, Huntingdon 2

3 bed bungalow for sale in Eaton Close, Huntingdon 3

3 bed bungalow for sale in Eaton Close, Huntingdon 4

3 bed bungalow for sale in Eaton Close, Huntingdon 5

3 bed bungalow for sale in Eaton Close, Huntingdon 6

3 bed bungalow for sale in Eaton Close, Huntingdon 7

3 bed bungalow for sale in Eaton Close, Huntingdon 8

3 bed bungalow for sale in Eaton Close, Huntingdon 9

3 bed bungalow for sale in Eaton Close, Huntingdon 10

3 bed bungalow for sale in Eaton Close, Huntingdon 11

3 bed bungalow for sale in Eaton Close, Huntingdon 12

3 bed bungalow for sale in Eaton Close, Huntingdon 13

3 bed bungalow for sale in Eaton Close, Huntingdon 14

3 bed bungalow for sale in Eaton Close, Huntingdon 15

3 bed bungalow for sale in Eaton Close, Huntingdon 16

Further Details

  • Status: Sold STC
  • Tenure: Freehold
  • Tags: Garage, Garden, No Onward Chain, Open Plan, Parking and/or Driveway, Shed / Garden Room
  • Reference: 590462

Location

Similar Priced Properties